FLOOR GUIDE
-フロアガイド-
 
 
                 天井高約5mの大空間に、ちょっとした打ち合わせや休憩にお使いいただけるソファ、窓際に配置したカウンターテーブル、共用のキッチンを備えたラウンジです。気分を変えて仕事をしたいときなど、自宅のリビングのようにお使いください。CIEGラウンジはすべての会員の方がご利用いただけます。設備は、プリント・コピー等が可能な複合機(有料)、月単位でレンタルできる専用ロッカーをご用意いたしました。
15-29㎡の完全個室のオフィス。壁や天井の仕上げ/半仕上げを選択可能で、追加の内装工事を入れたり、DIYでカスタマイズすることができます。事前協議の上であれば、退去時の現状復帰を行う必要はありません。個室と共用部を併用することにより快適なビジネスの拠点となります。
※個室に家具・什器等は付属しておりません。
 
 
                 デスクサイズ幅140cm、奥行き80cmの大きな専有のワーキング・スペース。有孔ボードの幕板にフックや棚などを自由に取り付こることができます。さらに、オプションとして鍵付のキャビネットや法人登記などを追加で利用することも可能です。
全ての方が利用できる予約制会議室。ホワイトボードが完備しており、プロジェクターやモニター等のレンタルもございます。6名用と8名用の4室を用意しております。
各種イベントや撮影にも対応可能な大空間。幅14m・奥行23m・天井高5mの広々とした多目的スペースです。倉庫のラフな雰囲気を活かしたこのスペースは、カンファレンスはもちろん、撮影やマルシェなど、さまざまなイベントにご利用いただけます。非会員の方もご予約いただければご利用可能です。
 
 
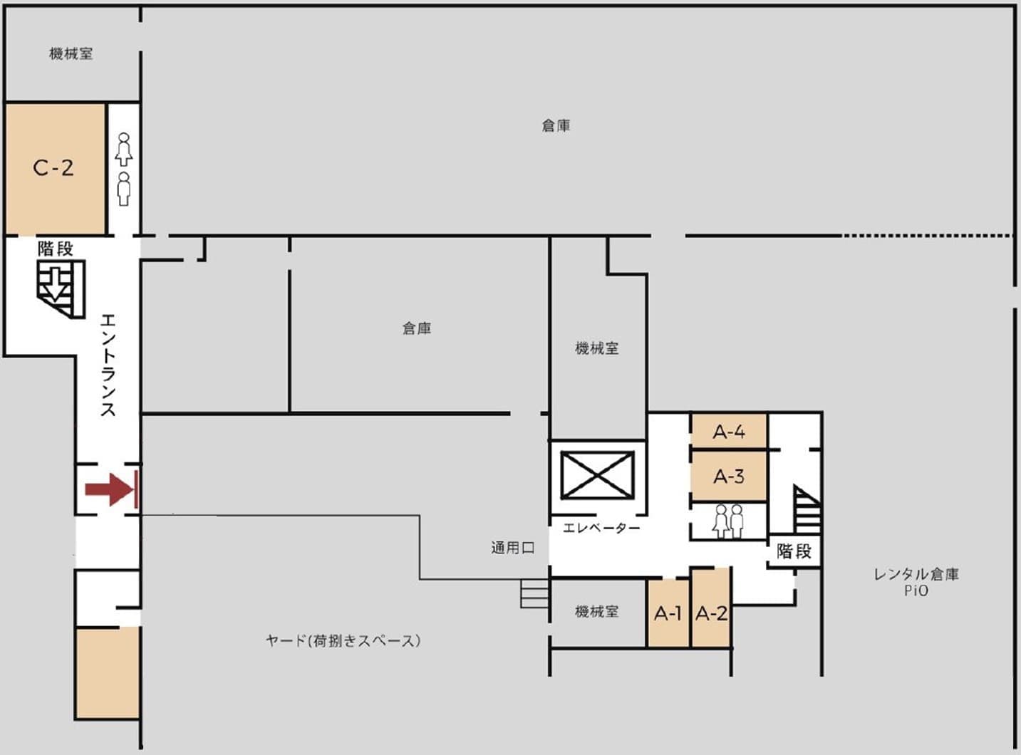
                 使いたいスペースをカスタマイズできる倉庫を完備、企業様、個人様でも気軽に使用でき、在庫を抱えるビジネスをサポートいたします。
 
 
                 車でお越しの方は敷地内駐車場をご利用頂くことができます。
満車の際はお近くのコインパーキングをご利用下さい。
 
 
                 倉庫保管、国内配送、通関、海外輸出入に至るまで総合物流のエキスパート・丸山運送が、ビジネスを強力にバックアップします。
 
 
               
 
                  
 
                  
 
                   
 
                   
 
                   
 
                   
 
                   
 
                  